•  +375 2239 71843   
  •  +375 293522520 (Viber, WhatsApp)
  •  ptozgb@domostroenie.by
  • 212
Воспроизвести видео о Svetlana_kb_007
О проекте

Дом из клееного бруса по проекту БД-04.1-10 "Светлана“ идеальный двухэтажный дом для постоянного проживания.
С лицевой стороны проекта размещается крытая терраса, а также наличие крыльца в боковой части проекта, позволит быстро попасть во внутренний дворик Вашего участка с задней части дома.
Материал коробки дома - клееный брус.

Общая площадь

134,02 м2
+ терраса 19,97 м2 и крыльцо 6,01 м2

Размеры

13370 x 10855 мм

Этажность

Двухэтажный

Помещений

9

Жилых комнат

4

Санузел

2

Комплектация
Особенности

Панорамное остекление

Терраса

Крыльцо

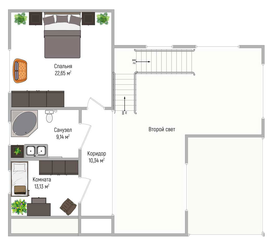
Планировка и экспликация помещений
Svetlana_kb_plan11
1 этаж
Svetlana_kb_plan22
2 этаж
Похожие проекты
"Relax home"
Общая площадь

114,54 м2 + терраса 33,40 м2

Этажность

Двухэтажный

БД-12.1-11 "Альбион"
Общая площадь

255,30 м2 +терраса 67,40 м2

Этажность

Двухэтажный

БД-05.1-10 "Престиж"
Общая площадь

165,00 м2 + терраса 40,40 м2 и крыльцо 9,10 м2

Этажность

Двухэтажный

Мы используем cookie. Это позволяет нам анализировать взаимодействие посетителей с сайтом и делать его лучше. Продолжая пользоваться сайтом, вы соглашаетесь с использованием файлов cookie.
Принять
Политика конфиденциальности